ZDRO系列電動0型切斷球閥由電動執行機構和0型球閥組成DN15~200為浮動球式,DN250~300為固定球式結構。該閥結構緊湊、體積小、重量輕、裝拆維修方便、流道通楊、流阻小、密封性能好。閥座采用撓性的唇緣結構,具有磨損補償和中腔自動泄壓作用,因而密封可靠,使用壽命長。
概述
ZDRO系列電動0型切斷球閥由電動執行機構和0型球閥組成DN15~200為浮動球式,DN250~300為固定球式結構。
該閥結構緊湊、體積小、重量輕、裝拆維修方便、流道通楊、流阻小、密封性能好。閥座采用撓性的唇緣結構,具有磨損補償和中腔自動泄壓作用,因而密封可靠,使用壽命長。
廣泛應用于石油、化工、電力、冶金、鋼鐵、造紙、醫藥、食品、紡織、輕工等行業。
技術參數和性能
閥體
型式 | 直通鑄造球型閥 |
公稱通徑 | DN15、20、25、32、40、50、65、80、125、150、200、250、300 |
公稱壓力 | PN1.6、2.5、4.0、6.4MPa |
法蘭標準 | JB/T79.1(2)-94、GB/T9113.1(2)-2000 |
材料 | 鑄鋼ZG(230-450)、鑄不銹鋼(ZG1Cr18Ni9Ti、ZG1Cr18Ni12Mo2Ti) |
上腳蓋 | 與閥體成一整體-45~400℃ |
壓蓋型式 | 螺栓壓緊式 |
填料 | V型聚四氟乙烯填料、含浸聚四氟乙烯石棉填料、石棉紡織填料、石墨填料 |
閥內組件
閥芯型式 | 球型閥芯 |
流量特性 | 快開特性 |
材料 | 鑄不銹鋼(ZG1Cr18Ni9Ti、ZG1Cr18Ni12Mo2T) |
額定行程 | 全開90° |
執行機構
型式 | 3410R、PSQ、HQ電子式電動執行機構 |
輸入信號 | 1-5V·DC |
電源電壓 | 220V/50HZ |
環境溫度 | -20~+70℃ |
閥體、閥內件標準材料組合及使用溫度范圍
R.TFE(F):二氧化鉬強化聚四氟乙烯
R.TFE(C):碳纖維強化聚四氟乙烯
HCr:鍍硬鉻
S.S:部分堆焊司太萊合金
閥體 | ZG230-450、ZG1Cr18Ni9Ti | ZG1Cr18Ni12Mo2Ti | |||||
球芯 | 材料 | 304 | 304 | 304 | 316 | 316 | 316 |
處理 | 拋光 | 拋光 | 噴焊、拋光 | 拋光 | 拋光 | 噴焊、拋光 | |
閥桿 | 材料 | 304 | 304 | 304 | 316 | 316 | 316 |
閥座 | 材料 | R.TFE(F) | R.TFE(F) | 304、316 | R.TFE(F) | R.TFE(F) | 316 |
處理 | - | - | S.S | - | - | S.S | |
泄漏等級 | VI | VI | IV | VI | VI | IV | |
使用溫度 | 2G3230-450 | -5~+180 | -5~+250 | -5~+400 | -5~+180 | -5~+250 | -5~+400 |
ZG1Cr18Ni9Ti ZG1Cr18Ni12Mo2Ti | -45~+180 | -45~+50 | -45~+400 | -45~+180 | -45~+250 | -45~+400 | |
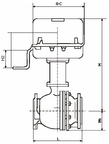
結構圖

執行機構配置、允許壓差
公稱通徑 | 15 | 20 | 25 | 40 | 50 | 65 | 80 | 100 | 125 | 150 | 200 | 250 | 300 | |||||
執行機構 | 3410RSA-05 | 3410RSA-10 | 3410RSA-20 | 3410RSA-50 | 3410RSA-60 | 3410RSA--100 | ||||||||||||
△P(100KPa) | 64 | 64 | 64 | 64 | 64 | 64 | 64 | 63 | 58 | 34 | 17 | 15 | 12 | |||||

外形尺寸
單位:mm
公稱通徑 | L | H | H1 | ΦC | H2 | ||
PN16 | PN40 | PN16 | PN40 | ||||
15 | 130 | 140 | 310 | 45 | 47.5 | 225 | 160 |
20 | 130 | 152 | 310 | 49 | 58.5 | 225 | 160 |
25 | 140 | 165 | 330 | 55 | 62.5 | 225 | 160 |
40 | 165 | 190 | 350 | 65 | 77.5 | 225 | 160 |
50 | 203 | 216 | 360 | 75 | 82.5 | 225 | 160 |
65 | 222 | 241 | 435 | 90 | 95 | 225 | 160 |
80 | 241 | 283 | 445 | 95 | 105 | 335 | 160 |
100 | 305 | 305 | 480 | 115 | 127.5 | 335 | 160 |
125 | 356 | 381 | 480 | 127 | 140 | 335 | 160 |
150 | 394 | 403 | 595 | 140 | 160 | 335 | 160 |
200 | 457 | 502 | 615 | 172.5 | 190 | 335 | 160 |
250 | 533 | 568 | 875 | 310 | 310 | 335 | 160 |
300 | 610 | 648 | 950 | 350 | 350 | 335 | 160 |
訂貨須知
訂貨時請填寫《規格書》或注明以下內容:
一、若訂貨前還未選定型號,請向我們提供您的使用參數
1、公稱通徑、額定流量系數Kv
2、流體性質(包括公稱壓力、溫度、粘度或酸堿性)
3、閥作用形式(電-關式或電-開式)
4、流量特性
5、閥前、閥后壓力
6、閥體、閥芯材料
7、輸入信號
8、是否帶附件,說明附件型號,以便我們的為您正確選型。
二、特殊要求
1、特殊檢驗
2、完全去油、去水處理;
3、禁銅處理;
4、特殊接口、配管;
5、真空條件下使用;
6、指定涂層顏色
7、特殊介質(氧氣、氯氣、氫氣);
8、使用不銹鋼連接件;
三、若已經由設計單位選定我公司的產品型號,請按型號直接向我公司銷售部訂購。
請您盡量提供設計圖紙和詳細參數,由我們的廠家為您審核把關。








?公司郵箱登入
?
浙公網安備33032402002441號